No.24(売却物件) 中古住宅 本宮字蛭田地内戸建
印刷用ページを表示する 掲載日:2026年2月20日更新
売却希望価格 250万円
| 土地面積 | 宅地:146.46平方メートル | 建物面積 | 126.71平方メートル |
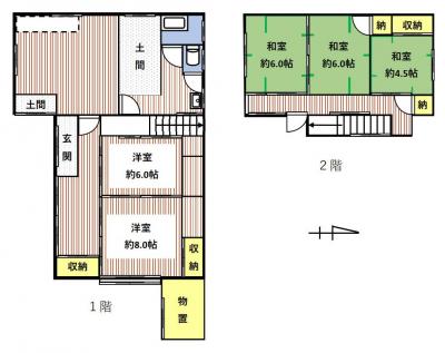
| 築年 | 建築年月日不詳 | 間取り | 5DK |


【1階洋室】 【2階和室】 【台所】

【2階和室】 【浴室】 【トイレ】
| 所在地 | 本宮字蛭田地内 | 建物名 | No.24 本宮字蛭田地内戸建 |
| 売却希望価格 | 250万円 | 補修の費用負担 | 入居者負担 |
| 土地面積 | 宅地:146.46平方メートル | 建物面積 | 126.71平方メートル |
| 間取り | 5DK | 構造 | 木・コンクリートブロック造 亜鉛メッキ鋼板葺 2階建 |
| 完成年 | 建築年月日不詳・昭和41年一部増築 | ||
| 下水 | その他(下水道引き込み可) | ||
| 通学区 | まゆみ小学校(1,200m) 本宮第一中学校(1,100m) |
||
| 設備 | サンルーム、物置 | ||
| 駐車場 | 有 | ||
| 交通 | 電車:東北本線本宮駅 350m 徒歩5分 自動車2分 バス:福島交通上町バス停 150m 徒歩3分 高速道路:東北自動車道本宮I.C. 3,500m 自動車9分 |
||
| 備考 | 抵当権等の設定なし 浸水歴有:ハザードマップ0.5~3m未満区域 |
||
| 用途地域 | 近隣商業地域 | ||
| 建ぺい率 | 80% | 容積率 | 200% |
| 取引態様 | 直接型 | ||
| 引渡し | 相談 | ||
所在地は以下のリンクから
地図の読み込みに関する問題が発生したとき<外部リンク>
ご利用は「空き家を買いたい・借りたい方へ」から






